Stay at Diakofti Beachfront Holiday Home and the beach is at your doorstep. | House in Kythira

2 Bedroom House in Diakofti, Kythira
Kythera is one of the very few Greek Islands that has retained its traditional Greek character and resisted the homogenisation of tourism. Diakofti Beach is undeniably one of the most beautiful places on the island.
Diakofti Beachhfront Holiday Home is a a traditional Greek 'Kamara' that allows you to open your front door to the white sand and crystal blue waters of Diakofti Beach.
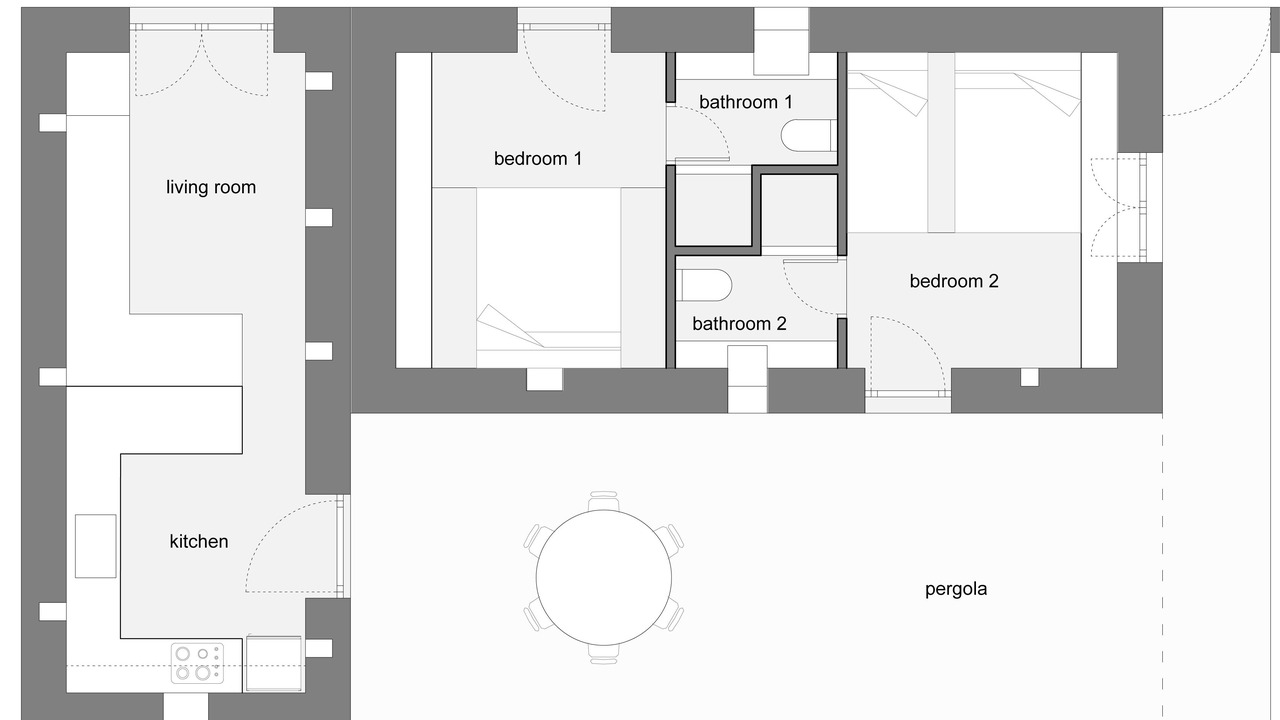
The house has 2 large bedrooms and a common living/kitchen space. One bedroom allows you to open your door onto the beach and the other bedroom opens onto the garden and has views of the mountains. Both rooms have ensuite bathrooms. The house is unified with a common living/kitchen area that has 2 entrances, one from the beach and the other from the pergola area near the garden.
The house includes all the modern comforts, such as wifi in all living spaces, LED TV with antenna, reverse cycle air-conditioning in every room, fully equipped kitchen with all appliances, a dishwasher and a washing/dryer.
There are 2 bedrooms, one which sleeps 2 adults on a double bed, the other sleeps 2 adults on a double bed and 1 on a single bed. The couches in the living room have been custom made to function as beds and sleep a further 2 people on each. Each room has an ensuite bathroom with a flushable toilet and a shower.
If the guests requires a cleaner to come in on a daily basis this can be arranged for a small fee.
There is parking on the property.
Pets are allowed , however not on the furniture.
The house is within walking distance to several locally owned and run tavernas and bars where you can experience a traditional Greek meal with perhaps an Ouzo or two.
A short drive away from Diakofti is the main town and other villages on the Island for even more eating and drinking experiences and many other shopping needs.
Diakofti Beachfront Holiday home is the perfect place for families, couples and friends as it offers enough seclusion for people to spend quality time together, while also offering activities and socialisation to get satisfaction from their stay on Kythera Island.
Stay at Diakofti Beachfront Holiday Home and the beach is at your doorstep is located in Diakofti. Stay at Diakofti Beachfront Holiday Home and the beach is at your doorstep provides accommodation, featuring Laundry, Designated Smoking Area, TV, among other amenities. This House features Laundry, Designated Smoking Area, TV, to make your stay a comfortable one.
Stay at Diakofti Beachfront Holiday Home and the beach is at your doorstep has 2 Bedrooms , 2 Bathrooms, and max occupancy of 5 people. The minimum rental for this property is 1 nights, but this can change depending on the season you plan on staying. Previous guests have given good rated it, and VRBO labeled it a top-rated House because of the excellent services rendered by the owner or manager of this House, and has consistently provided great experiences for their guests. Most families or guests that use it recommend it to their friends and some of them are repeat guests. House has a friendly neighborhood, and the Diakofti has interesting places to visit. If you want to learn more about the House in Diakofti, such as places to visit and things to do nearby, you can check below to learn more.
Amenities
Facility Overview
-
Air conditioning
-
Heating
-
Shower
-
Hair dryer
-
Towels provided
-
Soap
-
2 bathrooms
-
Bed sheets provided
-
2 bedrooms
-
Living room
-
Refrigerator
-
Cookware/dishes/utensils
-
Oven
-
Toaster
-
Dishwasher
-
Spices
-
Electric kettle
-
Laundry facilities
-
Washing machine and dryer
-
Near the beach
-
Beach towels
-
Car required
-
Onsite parking
-
Pet friendly
-
Designated smoking areas
-
Snorkeling nearby
-
Scuba diving nearby
-
Swimming nearby
-
Books
-
LED TV with cable/satellite service
-
Unit size: 947 sq ft (88 sq m)
-
English
-
Greek
-
In the mountains
-
On the waterfront
-
In a village
-
Near a hospital
-
Children's toys
-
Highchair
-
Iron/ironing board
-
Free WiFi
-
Garden
-
Patio
-
Barbecue grill
-
Outdoor furniture
-
Carbon monoxide detector not reported (host has not indicated whether there is a carbon monoxide detector on the property; consider bringing a portable detector)
-
Smoke detector not reported (host has not indicated whether there is a smoke detector on the property)
Policies
Extra-person charges may apply and vary depending on property policy government-issued photo identification and a credit card, debit card, or cash deposit may be required at check-in for incidental charges host has not indicated whether there is a carbon monoxide detector on the property; consider bringing a portable detector with you on the trip host has not indicated whether there is a smoke detector on the property onsite parties or group events are strictly prohibited special requests are subject to availability upon check-in and may incur additional charges; special requests cannot be guaranteed this property is managed through our partner, vrbo. you will receive an email from vrbo with a link to a vrbo account, where you can change or cancel your reservation